Частный дом или Квартира

Тема в разделе "Вторичное жилье", создана пользователем Dozer, 21.10.16.

  1. Любопытное Котэ

    Любопытное Котэ Активный участник

    4.960
    7
    Естессно... Я имела в виду планировку.

    ---------- Сообщение добавлено 03.01.2017 11:45 ----------

    MissTaggart, А где это будет?
     
  2. 3aвулoн

    3aвулoн Активный участник

    12.958
    1.340
    MissTaggart, какая связь между
    и
    ?

    по мне так с той скоростью, с которой у нас строят дороги, как раз к 45му году и управятся... а может никогда не управятся - просто деньги кончатся... или еще что то случится.

    а даже если и построят - дальше то что? как с нее в город попадать собрались? через несчастную Ардатовскую? или Казахскую, которая и так чуть что затык? КАК?

    ---------- Сообщение добавлено 03.01.2017 11:52 ----------

    вот что нашлось в сети
    ыыы. остался год. нашим автодорожникам сказки писать надо на манер Ганса Христиана Андерсена.
     
  3. pe2x

    pe2x Активный участник

    7.768
    66
    из чего строить все равно, цена будет почти одинакова, главное преимущество этих технологий (сип,каркас) время постройки и фундамент, но никак не стоимость самой коробки
     
  4. SATAN

    SATAN Активный участник

    8.038
    789
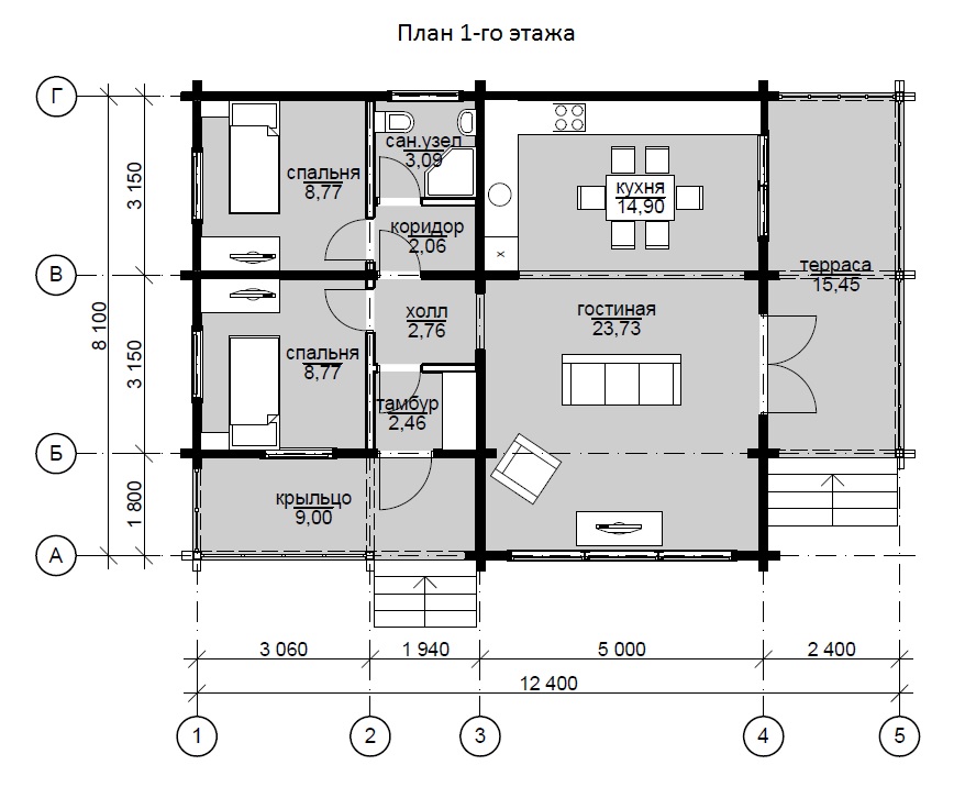
    Любопытное Котэ, Планировка.
     

    Вложения:

  5. ЮрВас

    ЮрВас Участник

    273
    0
    бред... во-первых, в цену коробки входит и фундамент и крыша, во-вторых, стоимость материалов очень существенно может повлиять на стоимость коробки. Стоимость КББ, ГББ или строительство из керам.блоков существенно отличается, не говоря уже о СИП панелях или ПП блоках. Отделка сайдингом, штукатурка, отделка облицовочным кирпичом или клинкером, так же существенно влияет на стоимость коробки. Количество перекрытий и материал из которого они производятся (деревянное, балочное, плиты или монолит...) так же влияет на стоимость коробки. Крыша как бы то же входит в коробку, но стоимость ее может отличаться в разы в зависимости от используемых материалов...

    ---------- Сообщение добавлено 03.01.2017 13:31 ----------

    у нас на поселке нормальные дома, скинулись сделали нормальные дороги (без месива из грязи), воздух чистый и тишина, хотя до трамвая минут 5-10 идти. Есть газ, свет, канашка, интернет...осталось провести воду. Просто у всех скважины и не сильно форсируют события. Участки разные, от 5 до 20 соток. Есть деньги можно выкупить и пол поселка как у нас один отделил себе несколько гектар...(48°43′23″N, 44°27′44″E48.722979, 44.462203) с озерами и конюшней и т.д. и огородился 3-3,5 м. забором... а не ныть, что в городе не купишь достаточно места чтоб не видеть соседа...

    ---------- Сообщение добавлено 03.01.2017 13:39 ----------

    енто почему еще? Это же не коммуналка или общага, а дом не на 150-200 человекосемей, а на 5-15 семей с гаражом, с индивидуальным входом и возможно палисадничком небольшим. Если построен по всем градостроительным планам, с соблюдением усех норм...то это хорошая альтернатива квартире...
    Из серии не читал, но осуждаю...

    ---------- Сообщение добавлено 03.01.2017 13:44 ----------

    в доме серый ключ выходит 15-20 тыс. Хде квартиру взять за такие деньги? Или считать надо с учетом земли? Но опять же если большой дом, то все равно дешевле квадратный метр выходит...
     
  6. 3aвулoн

    3aвулoн Активный участник

    12.958
    1.340
    ЮрВас, там ж дачи... раньше всяким исполкомовским начальникам давали? место хорошее, да.
    ну судя по карте там не несколько гектар, а всего один, но один фиг круто, без вариантов.

    ---------- Сообщение добавлено 03.01.2017 13:50 ----------

    сложить стены с ГББ - самое быстрое что можно придумать. перекрытия, крышу строить одинаково по времени. фундамент да, нужен более серьезный. но если задуматься о бейсменте, то все получается просто оптимально.

    ---------- Сообщение добавлено 03.01.2017 13:55 ----------

    из серии насмотрелся. чтобы понимать что это крысятник вовсе не обязательно самому становиться крысой.
     
  7. ЮрВас

    ЮрВас Участник

    273
    0
    это поселок "Перспектива", а вокруг него да есть дачи...
     
  8. pe2x

    pe2x Активный участник

    7.768
    66
    отделка она везде нужна не нужно ее считать


    вот не верю, есть расчеты конкретные по сипу что сколько стоит? на себе испытал что вата, пенопласт + работа с деревом и т.д. не выходит дешевле газоблока и разница там с кирпичем не сильно большая, отделка все равно выйдет в разы дороже


    если хочешь участок это только дом, таун - это ни то ни се, и пользоваться у нас спросом они не будут, уверен в этом у кого деньги есть построит дом, у кого нет купит квартиру, для кого эти тауны, кто их потенциальный клиент?
     
  9. IvUs

    IvUs Активный участник

    13.319
    1.017
    у одной конторы на сайте висят расчеты - для двухэтажника каркас с предчистовой отделкой стоит 15 тыс/квадрат, а блочный - 23 тыс квадрат. Понятно, что плюс минус лапоть, но разница есть.

    ---------- Сообщение добавлено 03.01.2017 18:19 ----------

    лично меня в квартирной жизни больше всего раздражают сутолока тачек во дворе и топочение над головой. к земле я равнодушен. поэтому серьезно рассматривал покупку таунхауса, желательно крайнего, чтобы был всего 1 сосед. :)
     
  10. OlegN

    OlegN Активный участник

    6.304
    2.532
    Ну не знаю.... Imho на Горной Поляне - замечательно. Контингент весь ровный, никаких тебе цыган и пр. как на Ангарском и Ельшанке. Транспортная доступность - вообще без проблем, никаких пробок (как на Ельшанке через Казахскую). Экология - лучшая в городе. Тут тебе и неск. прудов (сазанчики даже водятся), и сосновые и дубовые рощи, грибы, включая белые, санаторий рядом, тишина. При этом в 1.5 км. - 2я продольная, Акварель, Лента и пр.... ТИШИНА! Это не Анаграский и даже не Ельшанка. Участки все более-менее нормальные, ничего натыканного нет. Асфальт почти везде, в самом худшем случае - асф. крошка.... Чисто, уж чище точно чище (про остуствие грязи) чем в 95% дворов в любом месте дворов МКД в ВЛГ.
     
  11. pmb

    pmb Активный участник

    4.789
    962
    у меня у бабушки дом на красном в сносовой зоне с 1988 года сносят, до сих пор не снесут и не построят там многоэтажек.
    Хотя да, за 30 лет к их улице подошли вплотную.
    Как-то вы очень сильно верите во всякие ген планы со строительством дорог и развязок;)
     
  12. IvUs

    IvUs Активный участник

    13.319
    1.017
    Как с коммуникациями? Канализация, вода - центральные?

    В моем понимании "транспортная доступность" это когда сел на трамвай и приехал куда нужно.
     
  13. 3aвулoн

    3aвулoн Активный участник

    12.958
    1.340
    в прошлом году возил маму в санаторий (мож и путаю, тот не тот, но где то там у вас) - еще поразился колдобинам на дороге к нему вдоль реальных особняков. таким, что на пузотерке не всякий и проедет, не чиркнув. ну блин привези ты машину щебенки хотя бы, высыпь возле своего дома... щаз! недождетися!
     
  14. OlegN

    OlegN Активный участник

    6.304
    2.532
    да. Канализация, единственно, пока не по всем улицам.

    В Санаторий - по ул.Санаторной, Горная Поляна - обычно по ул.Засекина. Там вроде бы все ОК.

    Ну хз... В моем понимании транспортная доступность - это когда в течение минут можешь оказаться там, где нужно (на общественном ли транспорте, на личном, такси, или с водителем - тут все по обстоятельствам). Трамвая нет. Мне важно, чтобы минимум людей, тишина, без посторонних (с трамваем такое возможно?), относительно чистый воздух, чтобы было, где погулять (желательно не в городском пейзаже), на лыжах с горок поездить (естественно не в толпе народа); а как приятно на прогулке с ребенком куропаток встретить, фазана, зайцев, лису увидеть, при этом все рядом в минутах доступа (если нужно)...

    Хотя тут кому что нравится. Некоторых городская суета и куча людей на улице устраивает вполне. Мне суеты и людей хватает на работе, дома хочу отдыхать. И при этом не тратить много времени (в идеале - те же минуты) на поездку до/с работы.
     
  15. 3aвулoн

    3aвулoн Активный участник

    12.958
    1.340
    OlegN, зайцы и лыжи конечно реально хорошо. но работать то там в где? а в центр ездить каждый день - вот тебе и обязательная "городская суета и куча людей на улице". каждый день, пару часов в день.
     
  16. OlegN

    OlegN Активный участник

    6.304
    2.532
    Какие пару часов? С ЧЕГО? В самые-самые пробки пол-часа (30го только три раза в 16, 18, 21:30 приходилось мотаться туда-сюда как раз). И уж точно не больше, чем с того же Ангарского, или Ельшанки (где самая засада - ул. Казахская в районе СХИ - вот где в независимости ни от чего стоять придется всегда и перспектив по улучшению там нет).

    P.S. А зачем каждый день в центр ездить, кстати? Если, конечно, не на работу только. А в нерабочее время (точнее, утро/вечер в часы пик) - так вообще, сколько там, 15-20 минут максимум? Проблем нет.

    P.P.S. Ну а так, конечно, многое зависит от расположения "места работы". Ясно, что если на Тракторном, то выбор сомнителен. Так что тут спорить не буду. Но если центр - что там с домами ближе в плане времени "доезда"? Массив на Тулака - пожалуй, да (хотя там свои минусы есть, но и плюсы - Волга, например)? Частный сектор в Ворошиловском (но там все уж точно убитое и понатыканное с ужасными проездами; про шум и экологию вообще молчу) - отпадает. Частник в Советском в районе ул.Чебышева, по 2й Продольной и тд - убитые проезды, как правило маленькие участки, куча людей и тот же шум. Ангарский - не ближе (по времени), сомнительно по шумности и контингенту, да и если нужно, чтобы поменьше людей было, чтобы "выйти в лес погулять", в общем, оградиться от городской суеты там не где.... Что еще не учел? Хотя, опять же, я сравнивал по своим приоритетам. У каждого, понятно, они свои. И для некоторых, возможно, напр., тот же Анагрский может оказаться лучше... Все индивидуально, в общем....
     
  17. 3aвулoн

    3aвулoн Активный участник

    12.958
    1.340
    утром-вечером, туда - обратно потому что. в сказки про "полчаса по пробкам" не верю ибо сказки. сколько там "до центра"... под 20 км? "В самые-самые пробки" со средней скоростью 40кмч а в нерабочее время - 80? И это еще если есть машина. А если нет? Ну вот нет машины у жены или бабушки или ребенка?

    Есть тут у нас на форуме уже один летчик - с Металлургов до центра за 10 минут ездит (ну так он писал, когда квартиру там сдавал)...

    А разве эта самая Засекина не стоит временами так, что те полчаса на ней и простоишь пока на продольную выберешься? (мож и путаю улицу, врать не буду)

    Сравнил. с Ангарского пешком в хорошую погоду под настроение можно гулять.
     
  18. JampeR

    JampeR Активный участник

    11.074
    556
    40 км-ч средней сделать по городу получится разве что ночью, когда нет машин и половина светофоров отключена. Так, в нормальное время 20-30км/ч, в пробки, в зависимости от масштабности, от 5 км/ч до 15 км/ч...

    Среднеахтубинский район еще есть если что) По времени точно не больше чем с Центрального, по экологии явно лучше. Плюс есть цивилизованные поселки с работающей администрацией решающей проблемы (Лебяжья поляна и Владимирская слобода).

    Кстати, очистка воды из скважины, минимум 200тр первоначальных вложений. Меньше это уже эксперементы над жильцами дома и гостями.
     
  19. 3aвулoн

    3aвулoн Активный участник

    12.958
    1.340
    и комары.... и как дитю оттудова в авиамодельный кружок ходить или на музыкальную секцию? :)
     
  20. OlegN

    OlegN Активный участник

    6.304
    2.532
    Ну, спорить не буду. Сами съездите и оцените. Или не ездите, мне доказываь нечего. Кстати, до Аллеи Героев - 15км. При средней скорости 30км/ч - как раз пол-часа езды. По поводу нарушений правил и "10 минут до Красного" - это не ко мне - последний штраф за превышение был лет 6 назад, в городе более 75км/ч принципиально не езжу (вообще, личное правило - макс. +15км/ч к разрешенной в городе).

    В начале или в конце дачного сезона по воскресеньям, в ~18:00-19:00, когда все с дач ломятся - пробка может по Засекина быть на 15 минут. Но можно объехать через ту же Санаторную, или Петровского/Полухина если нужно быстро.

    Да пожалуйста. Всегда минусы найти можно. Точнее, они ВСЕГДА ЕСТЬ. Т.к. не бывает идеальных вещей. Все индивидуально и от приоритетов зависит. Конкретно по этому замечанию - 31к (и какие-то автобусы - не знаю какие только) ходит довольно часто. Конечная как раз на Горной Поляне. Но да, после 23:00, наверное, проблема. Опять же у жены может быть авто (и, соглашусь с Вами, конечно может и не быть), есть такси, водитель может быть - все условия и случаи индивидуальны и все разом не рассмотреть, при к.-н. обстоятельствах всегда будут критичные минусы.

    Ок. Признаю свою неправоту:-).

    Хоть раз за год на всем участке от Аллеи до Г.Поляны была средняя скорость менее 20км/ч по yandex.mapps??? Если сможете поймать момент - выложите скриншот, ок? А если вообще ехать не там, где все?

    Вот в СреднеАхтубинский по ПТ вечером или в ВС постоять придется- т.к. часто езжу в ВЛЖ. Зачастую по ПТ, вечером (или ВС вечер в ВЛГ), через ГЭС выходит быстрее.

    А это к чему? Как минус Среднеахтубинскому р-ну? Но вы же, наоборот, его хвалите?

    P.S. И почему привязка к центру идет? Только из-за потенциального места работы? Ну так я сразу сказал - от этого зачастую и отталкиваться нужно. Во всех других случаях вообще проблемы нет.

    P.P.S. Дискуссию заканчиваю, т.к., еще раз повторюсь, идеального В ОБЩЕМ СЛУЧАЕ места не бывает в принципе и все зависит от приоритетов, а Г.Поляна - как минимум для меня, для моих приоритетов, - наверное, лучший выбор в ВЛГ, ничего лучше для себя не вижу.... что, в то же время, не означает, что это так для всех остальных.
     
  21. 3aвулoн

    3aвулoн Активный участник

    12.958
    1.340
    да постоянно там у вас стоит от кировского в сторону Леруа. Весной лежал в Кировском в клинике мединститута - так все проклясть можно, пока оттуда выедешь, бывает затык сворачивал с продольной на (ул Кирова?) почти до этой самой клиники...

    И такое там (проблемное движение по 2й продольной) КАЖДОЕ утро. когда больше, когда меньше... Ну давайте пари чтоли? что фиг Вы хмммм.... ну пускай 17го января (дата случайна) выехав от дома в 09.00 окажетесь на Аллее Героев в 09.30?
     
  22. Dimanuga

    Dimanuga Активный участник

    27.825
    2.219
    Вот каждый кулик свое болото хвалит))) У меня друзья жили в кировском и так говорили, как здорово живется, но чет переехали на 7ветров в квартиру меньшей площади и признались, что там жопа жопой райончик:d
     
  23. pe2x

    pe2x Активный участник

    7.768
    66
    :d, родители с красного переехали в ворошиловский говорят также
     
  24. SATAN

    SATAN Активный участник

    8.038
    789
    JampeR, Да ладно. мы очистку брали за 30 т.р. чистит до 10 мг. железа. На троих хватает за глаза. Расход 2 мешка соли в год по 500 руб. промываем раз в 2 недели. Сейчас она тыс. 60-80 стоит. Но суть не в этом. Если железа мало то можно и пару фильтров поставить. Пить не желательно но купаться и мыть посуду за глаза. У меня на дачах друг в прошлом году купил дачу. Сейчас еще подружка хочет участок покупать под дом и друг маме строить. Но за участки гнут цены нереальные. Так что у нас сейчас стоит проблема купить 3 участка. Где я конечно живу не коттеджный поселок но очень спокойно и тихо. Да и ехать 10 минут до центра. Люди потихоньку строятся. Но все равно из 250 дач. заброшенных где то 30. и 10 участков. Вот гуляем в хорошую погоду присматриваем.
     
  25. Бета

    Бета Активный участник

    26.135
    3.002
    У меня свекровь вообще сказала, что лучший район во всем волгограде - кировский.
     
  26. 3.14-2.71

    3.14-2.71 Активный участник

    21.456
    203
    Бета,

    она не права.

    Жилуха -- центр Вселенной, you know
     
  27. Бета

    Бета Активный участник

    26.135
    3.002
    3,14-2,71, адназначна!!

    ---------- Сообщение добавлено 04.01.2017 13:09 ----------

    Я уже задолбалась участок искать. Везде что-нибудь, да не так.
     
  28. 3.14-2.71

    3.14-2.71 Активный участник

    21.456
    203
    Бета,

    Може, опять на ВС? ;):shuffle::coolz:
     
  29. Бета

    Бета Активный участник

    26.135
    3.002
    3,14-2,71, недавно заезжали ради интереса. Дом чей-то сфоткали.
    Муш категорически против. Из-за комаров. Так и говорит "за Волгой для нас земли нет!"
    Он их не переносит на генетическом уровне. Помнится спецом приезжали в ВС в самый комариный пик, почувствовать, как сказать, на собственной шкуре. Так он дверь открыл и тут же захлопнул (а я уже вышла). И не пускал меня обратно.))) Так по всему внешнему периметру и объехали- он в машине, я пешком. В масловке только пустил меня обратно в машину, там комаров было поменьше.
    Ну и цены у вас совсем вышли за пределы разумного. Нам за мильен двести-то казалось дорого.
     

    Вложения:

    • image.jpg
      image.jpg
      Размер файла:
      714,9 КБ
      Просмотров:
      474
  30. 3.14-2.71

    3.14-2.71 Активный участник

    21.456
    203
    Бета,

    ну, вам виднее.

    Вообще, были времена когда за Волгой комары были а в городе нет.

    Последние годы стало одинаково. Вот прям совсем. Бывая часто там и возвращаясь в город, не находил никакой разницы.