Участок в ДНП "Владимирская слобода"

Тема в разделе "Продажа недвижимости", создана пользователем 3.14-2.71, 01.10.16.

  1. 3.14-2.71

    3.14-2.71 Активный участник

    21.456
    203
    3aвулoн,

    это не избы среднего крестьянина. Слышал выражение -- изба-пятистенка? в классике встречается, причем как атрибут зажиточного мужика. Так эт изба поделенная пополам, две комнаты. Обычные мужики имели однобъемные избы.

    Колидоры не широкие должны быть, их вообще не должно быть при грамотной планировке.

    Ну так и не надо было русского человека из изб вынимать, нашто ему чуждое пространство хотя бы и хрущоб? кстати говорят это немецкий проект для рабов на оккупированных землях.
     
  2. Invader

    Invader Читатель

    13.234
    1
    Сталенке, тогда для руковдства чтоль))) Говорят у него, на ходу предумывает)))
     
  3. 3.14-2.71

    3.14-2.71 Активный участник

    21.456
    203
    http://noorderlingen.org/pages/khruschoba-03.htm
     
  4. Invader

    Invader Читатель

    13.234
    1
    В хруще одна комната, за 30 квм))) Десдить, не мешки ворочать))) А уж места под дворницкие, консержку и т.п. коляски и прочие атрибуты, школы и детсады в шаговой доступности, были потом полностью скопированы в Юго-Восточной Азии, в техно-парках))) Во многих ЗАТО, у нас, это до сих пор работает в лучшем виде, лапшу только у нас в регионе холопам можно на уши вешать))) Главное чтоб на дедовский каркасник в колониях стояло)))
     
  5. 3aвулoн

    3aвулoн Активный участник

    12.958
    1.340
    на второй этаж обычно селят родных гостей из серии "дети приехали погостить у родителей". и сидят такие мама ф халате и папа в семейный труселях у телека в гостиной чаи гоняют, и тут доченька с улицы мимо них с кем то... шмыг...
    --???
    --мам пап, да это Васька с соседнего квартала, мы щас с ним часок покувыркаемся и опять убежим гулять...
    Занавес.

    Приватная зона это не та зона, куда трудно пробраться, а та, в которую не пускают чужих :)
    В частности тут правильно писали - кухня приватна.
     
  6. 3.14-2.71

    3.14-2.71 Активный участник

    21.456
    203
    3aвулoн,

    кухня входит в публичную зону, как раз.

    Дом строят для себя а не для гостей, поэтому то время когда гости есть можно и перетоптаться как то.

    Дом строят не тины а родители, и родителям как раз интересно контролировать что за васю дочка привела.
     
  7. Бета

    Бета Активный участник

    26.135
    3.002
    3,14-2,71, спорно насчет публичности кухни. А насчет ее непрезентабельности что скажешь?
     
  8. 3aвулoн

    3aвулoн Активный участник

    12.958
    1.340
    кухня, столовая и гостиная - это три разных комнаты (ну если это не ненавистная тебе хрущоба). и вот как раз на кухне (место приготовления пищи, мытья посуды и т.п.) гостям делать ну совершенно нечего.

    ---------- Сообщение добавлено 09.11.2016 09:58 ----------

    и кончится это тем, что дочка будет кувыркаться с Васей не дома а за ближайшим кустом. А когда забеременеет и официально выйдет за него за муж - они вдвоем а потом втроем с лялькой будут скакать через гостиную по папе и маме. хрен больше папа попьет пиво в труселях под футбол...

    Офигенный комфорт.
     
  9. 3.14-2.71

    3.14-2.71 Активный участник

    21.456
    203
    3aвулoн,

    дома залететь риск меньше? ну у тебя и логика.

    а по три поколения живут как раз в хрущобах, где вопрос о лестнице и зонах вообще не стоит.

    Кухня входит в публичную зону что бы ты не фантазировал. Не хочешь пускать на свою -- не пускай.
     
  10. 3aвулoн

    3aвулoн Активный участник

    12.958
    1.340
    3,14-2,71, дома риск залететь меньше. запланированный секс не есть синоним случайного секса под кустом.
    понятно. после хрущобы и так сойдет. строил строил папа себе жилье... и хрен в нем вечером посидит спокойно. начнет шляться по барам, смотреть там футбол, бухать под него с новыми друзьями, сопьется, разведется с женой, уволится с работы и кончит жизнь бомжом на помойке. а все проклятая лестница виновата :)

    я понял что мне такой тип планировок напоминает. это хендай солярис в автомобилестроении. после отечественной шохи - просто чудесное творение. после субары - таже шоха тока вид сбоку.
     
  11. 3.14-2.71

    3.14-2.71 Активный участник

    21.456
    203
    3aвулoн,

    во первых, лестница позади гостиной -- далеко не каждый план. Есть и от дверей, есть сбоку.

    Но твои аргументы -- это просто высосаны из пальца. не нравится тебе -- не строй. Другие не видят ничего ровным счетом проблемного. Из спальни в кухню попасть ближе, это гораздо важнее в повседневной жизни, чем твои домыслы о мифическом залете.

    Вот когда обсуждался дом что выше приведен, разные варианты предлагал. У одного из них была двускатная крыша с фронтонами. На что жена хозяина заявила что ноги ее не будет в доме с такой крышей, лучше разведется. Только вальмовая.

    Твои аргументы примерно такого же плана. Как у старой дурной бабы. Только ты под личную непрязнь пытаешья подвести фундамент и заявить как принципиальный недостаток.
     
  12. 3aвулoн

    3aвулoн Активный участник

    12.958
    1.340
    а я выше так и написал что этот конкретный план - весьма неплох.
     
  13. С.В.

    С.В. Активный участник

    5.439
    1.538
    Прошу прощения, не удержался - вставлю "свои пять копеек" в это проект (что в сообщениях 106 и 114):
    1. Абсолютная неприспособленность для наших зим - вход в дом на уровне земли (а если обильный снегопад с метелью ночью - из окна потом выходить?), одна дверь между улицей и жилыми помещениями. Когда заходит 1 человек в мороз 20-30 градусов, еще туда-сюда, а если несколько, да еще и с детьми, получаем огромную потерю тепла за один вход/выход.
    2. Две спальни - обе маленькие. Я живу в 4-х комнатной квартире, где спальни такого же размера. Вы не представляете, как я жалею, что мы не сделали спальню из зала, который используется только для просмотра ТВ (у меня он, как домашний кинотеатр с объемным звуком)
    3. Вход с улицы прямо в гостиную - простите, но это офис получился :)
    4. Отсутствие стены у кухни - ну если только хозяева не любят готовить дома, или всё тепло от большей части дома спускать в принудительную вентиляцию.

    Далее, рисовать не хочу, но я бы сделал по другому. Ровный квадрат или прямоугольник по периметру дома (удешевление строительства из-за обустройства крыши, меньше изгибов труб у отопления, если оно паровое/водяное, хотя я бы заливал тосол, а не воду). Вход в дом посередине одной из сторон. "Холодная" прихожая, где остается грязь с улицы и снег, заносимые обувью, дверь, небольшой коридор, где остается верхняя одежда, дверь с выходом в холл, из которого по "кругу": детская (если ребенок один), кабинет/комната для гостей, если в доме живут только супруги или один человек, - строго переночевать, в нём кладовка/встроенный шкаф, кухня/столовая, санузел, спальня, зал/гостинная. Площади и количество комнат ограничены только размерами дома по периметру.
    Цоколь (так понятнее), просто утепленный, отапливаемый только в месте ввода труб и отопления (под санузлом и кухней) - пол на уровне земли, высота потолка 2 м. В нём гараж на несколько машин, тех. помещения. Вход с улицы.
     
  14. Бета

    Бета Активный участник

    26.135
    3.002
    Народ обычно упускает из виду, что есть заданная площадь дома. Например 90 метров. Вот как хошь ее, так и распределяй. Хочешь маленькие спальни и большой зал, а хочешь наоборот.
    Понятно, что лучше все большое - и спальни, и гостиная, и кухня. Но так можно улучшать до бесконечности, а бюджет не незиновый. Приходится ограничить общую площадь, с внутри этого ограничения уже играть.
     
  15. out

    out Читатель

    23.308
    5.634
    А зачем огромная спальня? В изначальном проекте норм было, как раз, с учётом гардеробов. То, что получилось- маленькое именно потому, что шкаф не поместится. А так у меня спальня и детская 14, кажется метров. То есть такие же маленькие+шкаф. Абсолютно хватает. Даже не знаю, зачем они больше. Лучше доп пространство на кухню уйдёт пусть.
     
  16. 3.14-2.71

    3.14-2.71 Активный участник

    21.456
    203
    С.В.,

    то есть в итоге колхозный дом. Не все надо упрощать в угоду практичности, надо и о красоте думать.

    Исходный проект разработан в канадском Квебеке где зимы как у нас. Вообще канадские проекты часто имеют тамбур, что в Америке редкость.

    В данном конкретном случае вход в холл на промежуточном уровне, ниже уровня пола гостиной. Холодный воздух не идет вверх, остается там или скатывается в бейсмент. На площадке около двери стоит радиатор, который компенсирует потери тепла.

    Спальни маленькие, да. Но это типовое решение в случае ограниченности бюджета. Зато большой зал. Встроенные шкафы в проекте есть но в итоге их заказчик удалил и притащил шифоньеры из старой квартиры, чем испохабил проект.

    Дети там не планируются, дом для эмптинестеров, пенсионеры. Которые спят в разных комнатах -- что есть весьма разумная идея. Ибо в старости не до романтики, один кряхтит, другой не спит, и так далее.

    В бейсменте полно полезного места не только ввод труб.
     
  17. sema

    sema Активный участник

    19.033
    2.344
    Еще один.... Мороз 20-30 НЕ КАЖДУЮ ЗИМУ. Про "обильный снегопад с метелью" вообще молчу. Давай весь год подниматься на три ступеньки ради мифического снега раз в пятилетку.
     
  18. С.В.

    С.В. Активный участник

    5.439
    1.538
    Красота делается отделкой. Даже из 5 кв. метров можно сделать конфетку. И какой прок от красоты, если она будет непрактична? Это же будут просто понты.
    Я лучше буду жить в "колхозном" удобном и практичном жилье, чем в красивом снаружи, но неудобном внутри.

    Есть знакомые, у которых квартира более 200 кв. метров в одном уровне на высоком этаже с видом на Волгу - вот мой идеал, хотя мне бы и 100 кв. м хватило для 3-комнатной квартиры (после своего "домика" на Тулака). Жаль у меня столько денег нет :) , чтобы купить такое и потом за это платить.

    ---------- Сообщение добавлено 09.11.2016 11:40 ----------

    Реальная история. Решили мы как-то справить новый год на одной из баз (большие площади, бассейн и сауна внутри, до ближайшей остановки ОТ 2 км. И вот в ночь с 30 на 31 декабря выпадает столько снега, что открыть гараж снаружи, предварительно не расчистив снег от ворот нереально вообще, ну а сама машина выехала на 5 метров всего из гаража, и пришлось её загонять обратно. Фигня она всегда случается тогда, когда меньше всего нужна. Это закон подлости. Поэтому даже "колхозные" дома в нашей стране принято приподнимать над землей, чтобы каждое утро из них можно было выйти на улицу через дверь.
     
  19. 3.14-2.71

    3.14-2.71 Активный участник

    21.456
    203
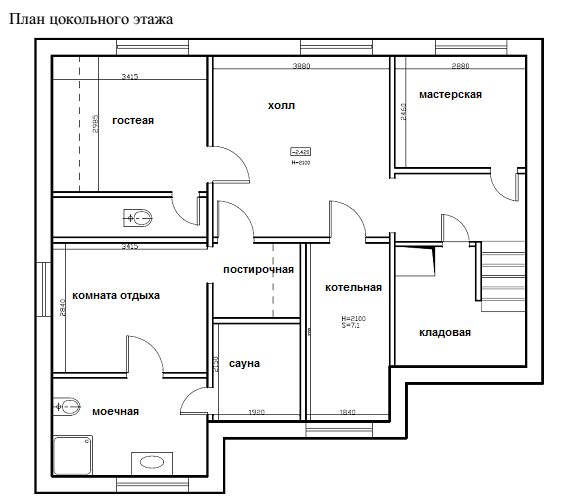
    Вот план бейсмента

    Нужда в гараже вопрос спорный, тем более ниже уровня земли. Тот еще квест по обледенелой рампе заезжать. Надо делать над ней крышу и так далее.

    В этом проекте навер, карпорт, слева от дома. Для этого лестница между ванной и спальней.
     
  20. 3.14-2.71

    3.14-2.71 Активный участник

    21.456
    203
    план
     

    Вложения:

  21. 3.14-2.71

    3.14-2.71 Активный участник

    21.456
    203
    см. реализацию на фотке. Вход приподнят на три ступеньки, не заметет. От открывается вовнутрь.

    Красота в архитектуре как раз в первую очередь определяется формой. А отделкой в последнюю.

    Ну и что спорить? нарисуй и выложи, обсудим.
     
  22. С.В.

    С.В. Активный участник

    5.439
    1.538
    Это уже двухэтажный дом получился, вообще-то. Тут уже отсутствует предмет спора. При этом проект предусматривает наличие в этом жилье женщины. Спросите у любой женщины, как им спальня в 9-11 кв. м. ? Двуспальная стандартная кровать + две прикроватные тумбы - всё остальное противопоказано в ней. А надо бы еще шкаф и косметический столик разместить.
     
  23. Бета

    Бета Активный участник

    26.135
    3.002
    Опять эта таинственная постирочная. ))))
    Никогда не пойму 2 вещи - домик для гостей. Чтоб я так жил, гостям дом строить!!!!
    И постирочная. А чо сразу не банно-прачечный комбинат?))) ведь предполагается обстирывать роту солдат. 0,36 кв.м. на стиралку не хватит же. )))
     
  24. sema

    sema Активный участник

    19.033
    2.344
    Слушай, ну у меня у сестры дом на красном - и гаражи и вход в дом - все на уровне земли. Да, ворота поднимаются вверх. И конечно же круглосуточная ставка сторожа, которому можно дать лопату и сказать копать.
     
  25. С.В.

    С.В. Активный участник

    5.439
    1.538
    Первое - в том месте, где находятся участок - не спорный, машина там просто необходима для каждого члена семьи. Т.е. минимум две, если дом для пары без детей.

    Где я писал про "ниже уровня земли?" "Бейсмент" красивое иностранное слово, которое я прочитал первый раз в этой теме, про которое знают только те, кто занимается проектированием, только и всего...
     
  26. Бета

    Бета Активный участник

    26.135
    3.002
    С.В., нужду в машине никто не оспаривал. Сомнительна нужда именно в гараже.
     
  27. IvUs

    IvUs Активный участник

    13.319
    1.017
    Надо было делать 2.7x3.8

    ---------- Сообщение добавлено 09.11.2016 12:42 ----------

    ниже 20 случается каждую зиму, на неделю-две уж точно.
     
  28. С.В.

    С.В. Активный участник

    5.439
    1.538
    Тут кому-как... Просто в своём "проекте" гараж у меня "выплыл", чтобы занять пустующие помещения в цоколе, освободив место для них во дворе, только и всего. Многие меняют колеса, перегоревшие лампочки, доливают жидкости самостоятельно, и это лучше всё-таки делать в помещении, где находятся все принадлежности для машины, а не на улице, даже если и под навесом.

    Просьба, вопросы мне больше не задавать, из обсуждения выхожу, далее только "читатель".
     
  29. IvUs

    IvUs Активный участник

    13.319
    1.017
    По-моему понятие "гараж" следует понимать как можно шире, как универсальный хозблок позволяющий закатить внутрь машину.
     
  30. 3.14-2.71

    3.14-2.71 Активный участник

    21.456
    203
    Понятие прайвеси у русских отсутсвует, и не только у них. Посмотри на Трейвел ченел программу "Охотники за международной недвижимостью". Как экспаты, в основном американцы, ищут жилье в разных странах мира. Чуть менее чем все сразу запрашивают +1 спальню -- "к нам же будут гости приезжать". И очень огорчаются выяснив что не по карману. Мало где в мире могут себе такую роскошь даже местные позволить.

    Русские же как юбы не ненавидели "пиндосов", во многом следуют им в жисти. Давно не живут дети и внуки с родителями, норовят съехать уже студентами -- ну прям как в Америке. Гости же, другой прикол -- расшибится но принять как надо. Поэтому, идея госстевой спальни или домка прекрасно радует русскую душу, при бюджете хоть чуть выше среднего.

    На что уж я холостяк, но понимаю зачем нужна построчная. А рассортировать белье до стирки, что с чем нельзя, после стирки разложить, а гладить? сколько простыней и полотенец образуется после тех же гостей?

    Вообще есть прикольная фича: бельепровод. Когда прачешная внизу, делают шахту и кидают шмотки прямо туда.

    В южных штатах кста популярна прачечная во дворе домик.

    ---------- Сообщение добавлено 09.11.2016 13:42 ----------

    в данном конкретном доме будут жить пенсионеры и спать в разных комнатах

    ---------- Сообщение добавлено 09.11.2016 13:47 ----------

    Еще раз: машина есть, тетка не водит.

    Вопрос спорный не о наличии машины, а о гараже. Многие против хранения машины в гараже. В том числе и заказчик. Предусмотрена площадка с навесом и вход с нее прямо в дом.

    Мы трем про проект с бейсментом, назови его цокольным этажом если кажется что это более по рюсске

    Немецкий Sokel и французский étage, ну все прямо по рюсске!

    Сразу видно что он заглублен в землю.