Квартира 136 квадратов - ремонт под ключ

Тема в разделе "Ремонт и строительство", создана пользователем ZoRG, 19.01.15.

Статус темы:
Закрыта.
  1. ZoRG

    ZoRG Активный участник

    1.291
    1
    ок)) :writer:
     
  2. Ralf

    Ralf Активный участник

    9.187
    469
    1,5-2 млн рублей это если считать только ремонт без мебели и техники и то если прикрутить аппетиты с дизайнерскими аксессуарами там где это не так важно.

    проект очень хороший, даже нечего сказать в упрек особо, все красиво и стильно, молодцы дизайнеры.
    но имхо для такой большой квартиры конечно грех резать площадь гостиной.

    многие элементы проекта узнаю из каталогов (недавно тоже занимался авторским дизайном помещения, свежи воспоминая артикулов и цен), готовьтесь что каждая люстра будет стоить от 30 до 100 тыс руб, светильники по 20 тыс штука и это недорого считается, это я еще евро по 50 считал. кресла и стулья явно не икея - ценники тоже высокие.

    интересно будет посмотреть фото после окончания работ.
     
  3. Starstas

    Starstas Активный участник

    5.265
    5
    холодильник "через дорогу" от рабочей поверхности готовки
    я свинья и весь пол уляпую бегая туда сюда
    имхо
     
  4. мясной

    мясной Активный участник

    720
    14
    +++
     
  5. samvg

    samvg Активный участник

    5.214
    46
    2600 т.р. 2012г 100м2 9 месяцев делал друг-сам плюс подрабатывал прорабом принимал работу субчиков (окна все замена + лоджия, кухня, натяжные потолки, разводка электриков, раздолбай-джамшут, установка межкомнатных дверей из массива, входной двери с расширением проема, разводка сантехника) его зарплата 370тр.
    250тр смеси, кабель, крепеж, ПГП, гипсокартон и пр.
    1880т.р. окна, паркетная доска, кухня с техникой теликом холодильник сайдбайсайд, двери, натяжные, обои, светильники, розетки, телик 55" , диван 3,6м угловой, спальня, детская Тётьково с диваном, 2 санузла ванна иск. камень, водонагреватель 80л и встройкой унитаза, шторы, гардеробная с раздвижной дверью, прихожка и шкаф на балкон на заказ, отделка балкона с утеплением, шторы-карнизы, 3 сплита.
    Вывезено 2 Камаза демонтажа "от строителей" примерно 8-9т.
    Завезено 70шт ПГП, 350 мешков черновые материалы Волма (Слой, Финиш, Ровнитель и т.д.), клей и финиш Церезит, ГК Кнауф, отделка средняя цена и выше.
    Друг занят на ближайшие 3 года :d
    Дизайна для себя :d, все по опыту ремонтов предыдущих 2-х квартир.
     
  6. ZoRG

    ZoRG Активный участник

    1.291
    1
    тебя в гости не позовём))))

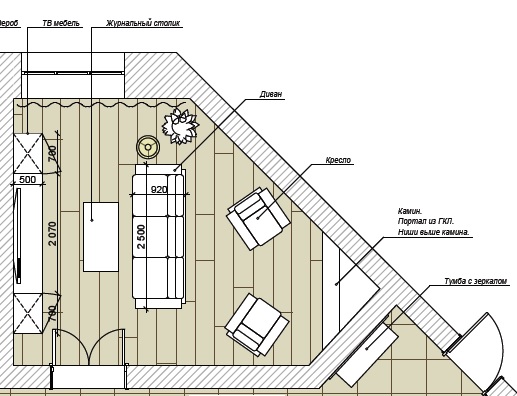
    Заставил задуматься...у нас изначально был ещё вариант гостиной
     
  7. ZoRG

    ZoRG Активный участник

    1.291
    1
    Выкладываю два варианта...2. текущий, 1. свободный....кто какой выбирает?))) можно флудить)))
     

    Вложения:

  8. ZoRG

    ZoRG Активный участник

    1.291
    1
    Что касается поиска специалистов, решил поступить следующим образом - к концу января обещают дизайнеры сдать работу...как будут готовы все расчёты, развёртки и тд. буду созваниваться с потенциальными исполнителями и давать данные для составления сметы... :writer:
     
  9. Arturvn

    Arturvn Активный участник

    11.333
    1.717
    ZoRG, совет по своему опыту - когда будут работу делать смотрите и проверяйте все сами.
    У соседей в новостройке бригада ремонт делает "по эскизу", так они там сильно не парятся - вместо звукоизолирующих матов в стены ставят теплоизолирующие - спрашиваю, а нахрена, ответ - "а какая разница, вата и вата".
    Провод без гофры в профиль кладут - "а что ему там будет", ну и так далее.
     
  10. samvg

    samvg Активный участник

    5.214
    46
    Я за свободный, ибо когда сидишь у камина не только на огонь охота посмотреть.
     
  11. Sonar

    Sonar Активный участник

    3.373
    14
    Есть бригада, делавшая мне лично 3 квартиры. И ещё моим знакомым. Притом мне делали и эконом под сдачу и для себя любимого. Делают не лешего, но качественнои с гарантией. Всмысле год после за все трещенки отвечают
     
  12. toks

    toks Активный участник

    2.941
    159
    Поддерживаю, кресла можно и к ящику развернуть с случае чего.
     
  13. Dazer

    Dazer Активный участник

    7.201
    55
    есть неплохие аналоги на порядок ниже по стоимости :)

    в трешке на свет (именно осветительные приборы ) ушла сотка. правда из них львиная доля на лампочки) лампочки, когда много света в проекте надо планировать диодные, это 300 рублей штучка, но зато за свет экономия. у меня 55 лампочек светит. здесь их наверное под 100 должно быть. По 5 вт. выходит всего 500 ватт - очень круто будет экономиться.


    нужно выбирать вариант без перегородки. это и дешевле выйдет и просторнее, потому как с прегородкой элементарный расчет показывает, что будет неудобно - столик+диван+место для выдвижения ящика нижнего в перегородке= мало места, нужно выбирать будет - либо столик отодвинуть, либо ящик открыть. это эргономически неудобно. И подводить /размещать электронику в перегородке будет гораздо сложнее, если нужно, чтобы было красиво и без проводов. Ну это так, наверное есть варианты, когда все беспроводное, но они видимо и дороже.

    также что касается кухни. там пусть 3950. смотрю на кухню саму, там газовая труба. ее надо будет закрывать фальшстенкой с усилениями под навес кухонных шкафов. это в районе 10 см. плюс кухня сама 60 минимум от стены, даже навреное 65. с противоположной стороны столик с ящиками - он на уровне холодильника, значит 60. Дверцы кухни как видно сделаны по 60, т.е. на их открывание нужно 60. получается 3950-100-650-600-600=2000. из них ну хотя-бы 800 нужно на стол. Остается 1200 на стулья т.е. по 600 с каждой стороны. стулья сами 500 каждый. В итоге - тесно! Это 100% мало, потому, что если больше 2 человек, то садиться и вставать придется по очереди, проходить негде и т.д. Это значит, что, наверное, у холодильника лишний столик.

    В детской нет стола. Подоконник не считается. И даже если его сделать 500 - это неудобно, мало, ноги ставить-вытянуть некуда, комп поставить невозможно, только ноут... А еще - как закрыть занавески, когда такой подоконник :)? Это будет уже некрасиво.

    Такая же песня, если посчитать размеры выходит с "барным" столиком на балконе. там 1200. можно его сделать узеньким конечно. Но это уже будет тоже подоконник. Шика не будет. Он должен быть толстый, не менее 50 мм. и не менее 500 от окна выступать, тогда будет вид.

    Еще важно, где будут розетки. Сразу планируйте проводку, чтобы всю красоту не портить висящим проводами.

    не очень понял, что за материал на фартуке, наборная мозаика или что-то подобное... Дешевеле и эффектнее сделать скинали, стекло с фотопечатью любого варианта под ваш стиль. Оценил, когда понял, что при удачном выборе цвета картинки совершенно неприхотливо к кухонным бедам типа брызг всяких и прочего такого. все удовольствие с установкой обойдется в 10 тыс)

    И из собственного опыта, когда короб над кухней будут делать, сперва пусть вентканал проложат, зафиксируют/герметизируют в вентиляционном отверстии и делают длину канала с запасом. Потому что кухонщики этого не делают, а этим как правило пофиг.


    К сожалению все сопоставлять с размерами и подробно исследовать нет времени.

    Может я и не прав в своих замечаниях, но именно вот размеры по месту потом заставляют нас бегать и искать варианты. У меня хоть вся почти мебель под заказ была, а если по каталогам, это я думаю вообще задача задач.

    Удачи в этом деле, в итоге оно, безусловно, того стоит!
     
  14. 1777

    1777 Активный участник

    7.104
    214
    а еще можно просто высокий шкаф, 90 см, до потолка, и труба внутри шкафа (благо труба идет сбоку, около окна) и потом уходит вниз, под стол, а в середине между шкафом и столо - закрыли фартуком - 5 см от стены)
     
  15. Дымка.

    Дымка. Активный участник

    2.549
    3
    В передачах типа "Школа ремонта", когда ведущие приходят через полгода к хозяевам квартиры, то всегда видно, что хозяева в процессе жизни немного перестраивают под себя этот самый ремонт, и это нормально ) Так и в любом ремонте. Потом оказывается, что нужно что-то передвинуть, что-то добавить и т.д.

    Еще у меня вопрос по проекту квартиры. Там есть комната для дочери, отдел для жены в спальне, а для мужа? Я так поняла, что там есть балкон из взрослой спальни, (на котором стоит одно кресло)-и его предназначили для него. Но тогда там нужно кое-что дополнить. Должен быть кабинет для мужа, чтобы он смог спокойно поработать дома. Т. е., надо подумать, как вписать в интерьер негромоздкий компьютерный стол, на котором встанут монитор и принтер. В этом столе- выдвижные ящики для документов. Книжный шкаф со стеклянными дверцами - тоже не нашла. Его тоже можно поставить в кабинет. И ни в коем случае не открытые полки для книг, ибо там будет скапливаться немало пыли. Еще шкаф будет нужен для разных штук, которые необходимы, но лучше их прибрать ( расходные материалы для техники, проводки-пассатижи, почтовые марки для хобби и т.д.) Если на балконе мало места, то можно все это в ту комнату для гостей ( которая небольшая и с диваном).
    Ну, это мое мнение про кабинет, и оно может не совпадать )

    И еще - как выше уже писали, про столешницы на балконе. Важно, чтобы за ними было комфортно сидеть и вытягивать ноги. По фото не совсем понятно, достаточно ли там места для ног.
     
  16. Zazell

    Zazell Активная

    25.628
    66
    1. свободный. В идеале тумбу сделать с пультом, чтобы телек как в отелях выезжал из тумбы.

    2. текущий вариант уж режет помещение.
     
  17. Dazer

    Dazer Активный участник

    7.201
    55
    ну это уже Тачка-на-прокачку какая-то)
     
  18. Вольффф

    Вольффф Активный участник

    6.423
    1.085
    Свободный вариант лучше, диван хотя бы сдвинуть можно в случае необходимости.
    А обходимость его не лучшая, там дверь мешает, там стол..... Еще вот ножки дивана должны быть такими [​IMG], чтоб мизинцу на ноге приятно было.
     
  19. Zazell

    Zazell Активная

    25.628
    66
    И чтобы поворачивался экраном и к дивану и к камину.
     
  20. CHa0ticZ

    CHa0ticZ Активный участник

    11.597
    9
    За исключением первого месяца, перед псевдокамином будете сидеть раз в полгода. При этом, львиная доля гостиной будет визуально уничтожена. От относительно просторной комнаты останется хз сколько м2.
    Мой голос за свободную гостиную!
     
  21. Zazell

    Zazell Активная

    25.628
    66
    А можно и вовсе тумбу с телеком сделать на подвижном подиуме (только это не то же самое что тумба на колесиках). И катай по комнате куда хочешь. Укатил в угол, повернул кресла и большой компанией фильм смотришь. Или укатил телек, притащил кресла и посиделки в "монополию".
    В случае подвижного подиума созерцание камина доступно и для дивана.

    ---------- Сообщение добавлено 22.01.2015 17:39 ----------

    А! Я за вариант зала текущий, но с подвижным подиумом.
     
  22. ZoRG

    ZoRG Активный участник

    1.291
    1
    у меня ребёнку года нет))) боюсь, подвижная тумба с её помощью уедет куда-нибудь на кухню)))

    Решение принято. Меняем зал на свободный. Визуализация будет переделываться. ;)
     
  23. Ralf

    Ralf Активный участник

    9.187
    469
    у себя в квартире пришлось пожертвовать стеной коридора для увеличения гостиной до комфортных размеров, так что не пожалеете. вариант без перегородки намного привлекательнее, хоть можно нормальную акустику hi-end поставить, также удобно гостей собрать побольше, мы на кухне почти никогда не сидим, хотя есть удобная столовая зона.

    может быть вы всегда мечтали о камине, а я бы сзади дивана организовал барную стойку, барные стулья а в углу сделал на заказ шкаф с частично открытыми полками, например для сувениров привезенных из путешествий. очень удобно проводить время за пк или пить чай за барной стойкой, в то же время кто-то из домашних может потягиваться на диване. у меня изначально такой проект был но решили сдвинуть диван максимально подальше от тв и стойку уже некуда стало ставить, зато когда приходят друзья мы легко умещаемся в 6-8 человек играя в монополию например в одной комнате и всем комфортно.
     
  24. Arturvn

    Arturvn Активный участник

    11.333
    1.717
    какая площадь комнаты получилась?
    сейчас как раз решаю какую площадь для гостиной выделить, чтобы комфортно было для компании.
     
  25. Zazell

    Zazell Активная

    25.628
    66
    Я же говорю не тумбу на колесиках!
    Диван по середине такой небольшой и замысловатой комнаты это опять же крадет место и довольно таки банально.

    А в случае в передвижной тумбой- подиумом у вас как минимум 5 сценариев гостиной.
    1. Диван телевизор (самый востребованный).
    2. Кресла свечи камин.
    3. Кресла телевизор
    4. Диван кресла игра
    5. Диван кресла телевизор.
     
  26. Talon

    Talon Активный участник

    2.153
    28
    по мне в квартре должно быть уютно.. а не как тут... имхо мне неприятен такой интерьер.
    как в торговом центре чтоли ощущение.
    з.ы. а по теме: у меня нет никаких мастеров на примете..))
     
  27. lemmus

    lemmus Активный участник

    5.575
    2
    Я за свободный вариант гостиной. В таком случае можно нормально расположить тыловые колонки домашнего кинотеатра, если он планируется. Главное красиво подвести к ним проводку :)
     
  28. CHa0ticZ

    CHa0ticZ Активный участник

    11.597
    9
    что такое акустическая розетка, думаю, десигнеры знают.
     
  29. Ralf

    Ralf Активный участник

    9.187
    469
    Arturvn, 25-27 метров точно получилось. чем больше тем лучше.

    а за тумбой целая копна проводов как будет передвигаться? это нереально сделать нормально с современными требованиями к технологиям, у меня скромный стек аппаратуры, так там около 10 различных проводов подходят к "тумбе". мне такое решение напоминает времена, когда не было беспроводных телефонов и некоторые делали длинные провода для аппаратов чтобы передвигаться с телефоном по квартире.

    для хорошего звука розетки не подходят, важно сечение провода и отсутствие лишних соединений - только прямой коннект с разъемами дорогим кабелем. дизайнеры не понимают в звуке, им это не надо.
     
  30. Arturvn

    Arturvn Активный участник

    11.333
    1.717
    Ralf, значит я не ошибся - 25 метров предварительно под гостиную выделил в проекте.
     
Статус темы:
Закрыта.