Погода в доме

Тема в разделе "Ремонт и строительство", создана пользователем 3.14-2.71, 28.03.13.

  1. modcomp

    modcomp Активный участник

    13.261
    2.090
    Могу предложить свой дом в качестве экспериментальной базы, для отладки тех процесса :shuffle:
     
  2. 3.14-2.71

    3.14-2.71 Активный участник

    21.456
    203
    да все работает не первый раз
     
  3. zyu-zik

    zyu-zik Активный участник

    10.712
    2
    modcomp, го!
     
  4. sema

    sema Активный участник

    19.044
    2.344
    Мой проект из квартиры бери, допиливай и внедряй. Еще на жж могу ссылку кинуть - там небольшой дом в подмосковье тепловым насосом отапливают.
     
  5. modcomp

    modcomp Активный участник

    13.261
    2.090
    а почему все таки солнечные коллекторы забраковали?? вроде здоровая идея и многие кто поставил довольны...

    ---------- Сообщение добавлено 08.01.2014 22:22 ----------

    буду благодарен за любую информацию по отоплению и вентиляции. За год мне надо определиться.
     
  6. andrusha

    andrusha Активный участник

    27.469
    5.235
    Чойта все? Ниче не все. Мне времени не хвата о тоб свой прожект допилил бы до конца:shuffle:
     
  7. sema

    sema Активный участник

    19.044
    2.344
    Затраты на ГВС в разы меньше, чем на отопление. И при наличии сетевого газа банальный накопительный котел гораздо дешевле. Здесь пишет что зимой не эффективно совсем.
    План дома выложи. Или хотя бы площадь, этажность и наличие газа :)
    Тут мои планы по вентиляции и кондиционированию. Там даже где то фотки сразу после монтажа были.
    Тут почитай, там тоже пару моих веток есть.
     
  8. modcomp

    modcomp Активный участник

    13.261
    2.090
    А в отоплении разве не горячая вода участвует, тем более во многих местах планирую теплые полы. Газ на поселок пока не заведен. Да и цена я думаю на газ будет скоро немаленькой, т.к. аппетиты их всегда только увеличиваются, а спрос падает.
     
  9. 3.14-2.71

    3.14-2.71 Активный участник

    21.456
    203
    modcomp, с чегой та на газ спрос падает? только растет.

    Когда нужно отопление то солнца нет. Когда есть то отопление не нужно.

    Самое главное не завышать мощность -- иначе в жаркие дни некуда деть излишек.
     
  10. modcomp

    modcomp Активный участник

    13.261
    2.090
    Спрос то да, только платить все меньше могут...
     
  11. 3.14-2.71

    3.14-2.71 Активный участник

    21.456
    203
    modcomp, там о скоммунизженных УК деньгах речь идет. Иддивидуальные потребители платят за газ стабильно.
     
  12. sema

    sema Активный участник

    19.044
    2.344
    Какое отопление если зимой 50л несколько дней нагревается?
     
  13. modcomp

    modcomp Активный участник

    13.261
    2.090
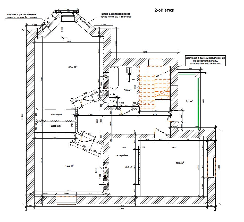
    высота потолков: цоколь 2,7 м., 1-ый этаж - 2,85, 2-ой -2,8 м.
    Перекрытия: между цоколем- 1 этажом - ПП, между 1-ым и 2 ым - монолитная плита 17см. между 2-ым и чердаком деревянные (доска 150х50)
    Материал стен ГББ- 40см. + возд.зазор 1-2см. +пустотелый керамический кирпич. Окна буду стараться максимально теплыми делать. На крыше утеплителя 150 на перекрытие и 100 на скатную кровлю. В местах где мансардная часть (около метра) будет 200 минваты+ 50 ЭППС (или GB-1) затем ГКЛ.
     

    Вложения:

  14. modcomp

    modcomp Активный участник

    13.261
    2.090
    совсем далекое представление значит. Я сам видел в живую в Телоимпорте, даже в непогоду до обеда на котел выдал 2,5 кВт тепловой энергии. А по отзывам в зимний период каждая секция дает около 10 кВт тепловой энергии. т.е. поставил 5 шт. и уже можно снимать 50кВт в сутки...
     
  15. sema

    sema Активный участник

    19.044
    2.344
    Если чердак будет относительно теплый - канальник туда, целься сразу на ME, процентов 40 от розницы думаю можно сообразить. По крыше кинуть воздуховоды, по стенам (в шкафах и по гардеробным) опустить на первый этаж и в цоколь, на второй этаж прям через крышу можно отверстия заложить. В спальнях двух круглых диффузоров будет достаточно (приток вытяжка) по разным углам, в холле можно пару на приток. С коридоров, санузлов и влажных помещений вытяжки - но в эти помещения предусмотреть переток через двери. Так же по стенам можно и приточные решетки на пол опустить.
    В пару к канальнику сразу рекуператор. "Грязный" воздух можно в канальник не загонять, сразу через рекуператор на улицу. ME с Лосснеем штатно сопрягается, пульт не нужен. Если брать Балу, тогда на лоссней нужен пульт. Сразу прикидывай секцию догрева/разморозки, можно увлажнитель канальный сообразить, место позволяет. В принципе можно блоки и в цоколе разместить. У ПЕ за воздушное отопление можно поспрашивать, он говорил что за океаном даже секции газового нагрева бывают, если воздушное отопление не пугает. К канальнику дренаж не забудь, что бы на улицу не выводить. При планировании канальника учитывай длину фреоновой трассы к фронтону (на него внешний блок проще вешать, но у тебя с этим проблем быть не должно). В целом как-то так, завтра на свежую голову прикину воздуховоды. Площадь и объем дома напиши.
    Это на какой площади во первых, а во вторых 10 кВт - это в пике или среднесуточное? 50кВт это мощность, если "в сутки" то это как минимум кВт*ч будут. Плюс теплоаккумулятор на ночь.
    У него ВСК на 30 трубок. Только ГВС. Правда "немного" севернее, Нижегородская область. Отсюда почитай. Неэффективно. Там какие-то смешные цифры, около рубля в день с трубки, при их цене в 1200.
     
  16. modcomp

    modcomp Активный участник

    13.261
    2.090
    Площадь одного этажа около 110м2. т.е. почти 300 м3 на этаж. Я вот подумываю и наверное интересно было бы только охлаждение завести в спальни на 2-ом. этаже и гостевую и кабинет на 1-ом (солнечная стороны и нет вентиляции). В гостинной на первом и так будет не жарко я думаю (не солнечная сторона), стены и окна достаточно теплоизолированы. На крайняк засажу вечнозелеными перед окном. А в цоколе и подавно прохладно будет. Решить вот проблемму еще с рекуперацией...т.к. почти везде стоят вентканалы и выбрасывают на высоту метров 15 над землей.

    ---------- Сообщение добавлено 09.01.2014 00:36 ----------

    что такое МЕ? и Лоссней - это я так понимаю Митсубиши?
     
  17. sema

    sema Активный участник

    19.044
    2.344
    Нет смысла. Проще вентаканалы на весь дом раскидать, просто потом на первый этаж и в цоколь "задушить". Иначе потом будет реально перепад температуры когда со второго будешь на первый спускаться. У меня летом в туалете реально жарко, когда там задерживаешься.
    У ПЕ уточни. В любом случае вентиляция в цоколе лишней не будет. Минимум от сырости.
    С вентканалов на улицу выкидывается? В таком случае уходящее тепло утилизировать практически нельзя. Или вентканалы на чердак вести или в существующие "врезаться" :)
    Это тоже митсубиши, тока электрик, как как есть еще Heavy. http://mitsubishi-aircon.ru/

    ---------- Сообщение добавлено 09.01.2014 01:49 ----------

    Ну смотри, летом среднесуточная легко +30, значит и в доме без охлаждения будет минимум +30, что уже выше комфортной. Плюс источники тепла в доме - приборы плюс люди. Система отопления на какую мощность?
     
  18. modcomp

    modcomp Активный участник

    13.261
    2.090
    еще не общитывал. ТУ выдали на 3-ех фазн. 15 кВт.

    ---------- Сообщение добавлено 09.01.2014 01:09 ----------

    Живу без кондиционеров уже больше 40 лет и особых проблем не испытывал. В спальнях можно чуть прохладнее сделать чем в доме (гр. на 5-6)

    ---------- Сообщение добавлено 09.01.2014 01:12 ----------

    В домах из ГББ реально прохладнее, чем среднесуточная +30... у соседа так, когда летом к нему ходил пока не было сплитов.

    ---------- Сообщение добавлено 09.01.2014 02:22 ----------

    Первые попавшиеся ссылки:
    работающие объекты
    вот отзыв
    [ame]http://www.youtube.com/watch?v=e99ST1_yi-Q[/ame]
     
  19. sema

    sema Активный участник

    19.044
    2.344
    Газ есть?
    Я тоже 20 лет жил и не испытывал. А потом в общаге как поставил - так и понял что комфорт стоит вложенных денег.
    Да какая разница, ГББ, ШБ или брус? Теплотехнику и термодинамику еще никто не отменял. Одно дело заходить, другое дело замерять среднесуточную за бортом и в помещении. У моих тоже "дом термос". И когда я им сплиты в каждую комнату (а на балкон даже две) посоветовал, говорили что так много не надо. Но ведь регулярно летом включают - комфорт дело нужное.
    Плюс все машины со сплитами, на даче в вагончик парочку повесили. В общем в любом случае закладывай вентканалы минимум по 2 с каждого помещения.
    Мне одного неработающего достаточно. Ты собрался в огороде эти модули ставить? Ночью как будешь топиться? Зимой от снега чистить не устанешь? Насколько эффективно эта система будет работать в -20 с ветром и снегом? Каков ожидаемый экономический эффект? Куда будешь девать избыточную мощность летом?
     
  20. 3.14-2.71

    3.14-2.71 Активный участник

    21.456
    203
    Никакая изоляция не зещитит от жары так же как и от холода. Просто сдвигается по фазе. Если ты к соседу заходил днем и там было прохладно, значит волна жара накроет вечером.

    ---------- Сообщение добавлено 09.01.2014 09:04 ----------

    забудь про них просто -- тем более что они тебе фактически ничего не столили.

    ---------- Сообщение добавлено 09.01.2014 09:05 ----------

    еще меньше рни годятся в качестве дымохода.

    ---------- Сообщение добавлено 09.01.2014 09:17 ----------

    Вообще существует три школы по этому вопросу.

    1. Японская, отопления у них вообще нет, на крайняк кондиционером и топя.тся. Типовое решение и есть рекуператор в паре с канальником как у Семы. У японского канальника вентиляторы слабые, он способен либо если работает автономно прямо вокруг себя воздух обрабатыват, а что бы по всему дрму раздать, он передает канальнику.

    2. Немецкая. У них кондиционирования вообще нет, предпочитают в жару перетоптаться. Зато рекуператоры суровые, один прибор может обеспечивать весь дом. Это же укладывается в концепцию пассивного дома -- там рекперация обязательно, а если и требуется отопление, то оно обеспечивается небольшим подогревом приточки, отдельной системы нет.

    В обычных домах отопление само по себе, водяное.

    По сути у нас в большинстве случаев некая комбинация япосной и немецкой системы.

    3. Американская. Отопление как правило воздушное, туда же встроен и кондиционер. Эта система полностью обеспечивает санитарно-гигиенические потребности (кроме того зачастую оснащается электронным фильтром, увлажнителем и УФ-стерилизатором), рекператоры тоже встречаются но работают как подсистема воздушного отопления.

    ---------- Сообщение добавлено 09.01.2014 09:32 ----------

    нету у него газая, он писал же.

    Если газа нет и не будет, то я бы порекомендовал два варианта рассмотреть.

    1. Полноразмерный тепловой насос, с грунтовым теплообменником. Инвестиции значительные, но это правда работает. Тут тоже есть две школы, европейская и американская.

    В европейском варианте тепловой насос рабоатет на водяное отопление, в остальном ситсема так же выглядит.

    В Америке тепловой насос как правило греет воздух и встраивается вместо стандарной газовой печи. И он же роль кондиционера играет так как имеет реверсивный режим. Кроме удобства и экномии инвестиций, побочный плюс такого решения -- летом он закачивает в скважины тепло, компенисируя зимний отъем. Как известно это одна из проблем грунтовых теплообменников -- не успевают восстановиться за лето.

    Второй вариант попроще и если газ в какой то определенной перспективе будет.

    Воздушное отопление с кондиционером "тепло-холод" (это тоже тепловой насос но не требует никакого специального решение по "подключению" к внешней среде), плюс дизельная печь. В межсезонье дом топится от кондиционера, в морозы от солярки. Система управления сама следит что включать.
     
  21. ОЧумелец

    ОЧумелец Активный участник

    4.437
    49
    Правильно. Только "ночная фаза" легко обрезается проветриванием (открыванием окон).
     
  22. 3.14-2.71

    3.14-2.71 Активный участник

    21.456
    203
    ОЧумелец,

    я живу тут уж 40 лет. Нихрена не помогает, в июле то. И ночью жарко, и излучение от стен никуда не денешь. самые тяжелые часу -- от одиннадцати до часу ночи. Как раз доходит волна послеполуденного зноя.

    Ну и опять же, пережить можно. А зачем? вбухать много лямов в кирпичи и бетон и потом еще терпеть жару?
     
  23. modcomp

    modcomp Активный участник

    13.261
    2.090
    Я сторонник того, чтоб после выхода из дома не испытывать перегрузок в виде жары на улице. А так как на улице изменить температуру в Влг летом нам не под силу, то зачем упираться и снижать ее дома? Максимум 6-7 гр.С. Днем не страшно когда жарко, а вечером опустить в комнатах до +25, зачем гнать до +17-+19, а утром плющит на улице...
     
  24. 3.14-2.71

    3.14-2.71 Активный участник

    21.456
    203
    modcomp, верно. Но 25 не достигнешь без кондера.

    ---------- Сообщение добавлено 09.01.2014 12:15 ----------

    потом как измерять. Комфортная температура есть среднее между температурой воздуха тзмряемая обычно термометр и радиационной температурой измерений шаровым термометром. Вот последняя и дает гнусное ощущение в каменных домах по вчерам. Поэтому господа раньше терлись допоздна по беседа.
     
  25. sema

    sema Активный участник

    19.044
    2.344
    С открытым окном в помещение проникают не всегда приятные звуки с улицы, да и тогда ночью +30 (на пике жары) не поможет. Да и при 25 на улице для съема тепла нужна кратная вентиляция.
    В машине кондер, дома +24. Выхожу выключаю, захожу включаю. В квартире температура везде одинаковая. Такой комфорт стоит вложенных 100 тыс. в кондиционирование.
    Особенно в 40+ на солнцепеке без воды. Когда в тень уйти нельзя, надо "на посту" стоять.
     
  26. modcomp

    modcomp Активный участник

    13.261
    2.090
    у нас приятные звуки с улицы (тишина и сверчки слегка) ... взял включил вечером полив вокруг дома и уже не так жарко
    мы уже на посту отстояли свое и жара была поболее чем в наших степях... сейчас это не актуально. Днем в жару можно спастись за толстыми стенками, или в беседке рядом с фонтанчиком...

    ---------- Сообщение добавлено 10.01.2014 01:23 ----------

    газ планируется, года через 2-3, как раз когда подойду к завершению :).
    Тепловой насос с грунтовым не канает. У меня вода очень глубоко. А труб 700м. закапывать просто не реально на оставшихся 3 сотках.

    ---------- Сообщение добавлено 10.01.2014 01:30 ----------

    а что посоветуете из активного оборудования - сплит- канальник.

    ---------- Сообщение добавлено 10.01.2014 01:31 ----------

    Я вот не пойму, смотрю на рекуператор и за что такие деньги хотят за него (под 100 тыс. рублей!!!). У меня знакомый сделал из алюминиевых гофрированных труб разного сечения. Запихал их в большой коробок с 4 отверстиями. Встроил автомобильный фильтр салона... вообщем обошелся в рублей 500 аж.
     
  27. ОЧумелец

    ОЧумелец Активный участник

    4.437
    49
    Есть такое немного. Когда ночная температура не сильно опускается ниже +30.

    У нас соловьи в Латошинке..:shuffle:

    Только сегодня вечером разобрался с очередной приобретенной игрушкой: цифровым регистратором температуры и влажности;) Размером с зажигалку. Кладешь куда хочешь, а потом втыкаешь в USB и снимаешь параметры (графики). Минимальный шаг измерения 10сек. Я щас настроил на шаг-1час и положил на лоджию. Завтра полюбопытствую результаты:liplick:

    ---------- Сообщение добавлено 10.01.2014 00:54 ----------

    3,14-2,71, Так что "фазы" можно будет документально подтвердить-опровергнуть для любого помещения ;)
     
  28. sema

    sema Активный участник

    19.044
    2.344
    Иногда (особенно с непривычки) и сверчки напрягают. Собак у соседей нет? Петухи по утрам не кукарекают? Самолеты на глиссаду не заходят? Как оказалось на 39-й с открытым балконом именно они спать не давали, хотя аэропорт далековато.
    Но тепло из стен от полива не выйдет.

    Это по русски - вложить пару лямов в стены и экономить потом на инженерных коммуникациях. Под 100 тыс (80997 (2443 USD)) - это розница LGH-35RX5-E - от 230 до 350 кубов - соответственно вполне серьезная вентиляция. Можете для сравнения цены на немцев глянуть :) Я в своё время канальник напрямую в Мск за -40% к рознице взял. Лоссней в Р.К. брал, тоже со значительной скидкой.
    Есть и такое. Самодел на рынке тоже встречается. Тоже несколько сотен кубов пропускает и не шумит? Эффективность рекуперации надеюсь у него приемлимая?

    ---------- Сообщение добавлено 10.01.2014 07:23 ----------

    У меня живая музыка на халяву :) Когда на балкон выходишь. По крайней мере раньше в трынь-траве была. Сейчас во франтеле не знаю как с этим. Соловьи и сверчки - это конечно замечательно. Но одно дело когда ты открываешь окно что-бы их послушать и другое дело когда у тебя нет выбора - открыть окно или закрыть - ведь ты сэкономил на сплите. А потом жара за 40 придавливает, ты едешь в ближайший магазин, берешь там нонейм за 10 тыс, шараж бригады тебе его вешают. Такое решение по цене вне конкуренции.
    Надеюсь калиброванный поверенный? Плюс одно замечание ПЕ -
    Ну это как бы простейшая задача по теплотехнике. Нестационарная теплопередача и тепловые волны :)
     
  29. andrusha

    andrusha Активный участник

    27.469
    5.235
    Этот конструктив ходит в нете уверен оттуда его и взяли. Эффективность его крайне низка. Впрочем себе буду делать по такой же схеме с некоторыми улучшениями
     
  30. ОЧумелец

    ОЧумелец Активный участник

    4.437
    49
    Чтобы увидеть динамику процесса, калибровка не нужна.