Перепланировка

Тема в разделе "Ремонт и строительство", создана пользователем Everwesss, 05.12.10.

  1. Бета

    Бета Активный участник

    26.135
    3.002
    чем не повод.:d
     
  2. хочу_вот_сказать

    хочу_вот_сказать Активный участник

    8.374
    18
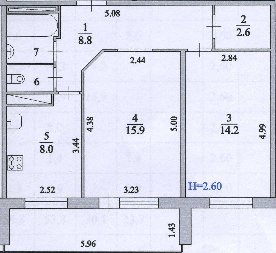
    ОЧумелец, предложи, пожалуйста, мне какой-нибудь вариант расширения санузла (сделав его совмещённым) таким образом чтобы туда влезла угловая ванна 180х180 :flag:

    прорубать окно из гостинной на кухню нельзя по условиям задачи
     

    Вложения:

    • plan.jpg
      plan.jpg
      Размер файла:
      633,6 КБ
      Просмотров:
      538
  3. хочу_вот_сказать

    хочу_вот_сказать Активный участник

    8.374
    18
    ещё никак не могу понять что на плане обозначено прямоугольником с проведённой диагональю?
     
  4. vnv104

    vnv104 Активный участник

    6.663
    1.517
    Скорее всего это вентканал.
     
  5. Everwesss

    Everwesss Активный участник

    8.275
    302
    vnv104, да, так и есть!
    Ммм, тема живёт!
    Тем временем, сортир уже готов! Оставил всё, как есть.
    У соседа снизу был, так у него сортир расширен именно так, как я предлагал вначале - стена перенесена в кухню и за ней спрятана небольшая ванная на метр сорок.
     
  6. ОЧумелец

    ОЧумелец Активный участник

    4.437
    49
    хочу_вот_сказать,
    Ничего "революционного" предложить не могу. :) А оно тебе надо - угловую? Подумай хорошо.
     
  7. Бета

    Бета Активный участник

    26.135
    3.002
    Ну вот, все умное давно придумано. :)

    ---------- Сообщение добавлено 18.01.2011 10:55 ----------

    хочу_вот_сказать, какая знакомая квартирка!!!
     
  8. хочу_вот_сказать

    хочу_вот_сказать Активный участник

    8.374
    18
    ОЧумелец, надо, мечта идиёта. Тут выкладку из СНиПа кто-то выкладывал согласно которой я могу расширить зону сан.узла за счет коридора, правильно? Как это потом узаконивать? Хочется стенку перенести (хотя даже если перенести хватает только по 170х170 впритык)... интересно а что если разбить вот эти зоны диагональю перечеркнутые - тогда бы точно хватило и под 180х180
     
  9. Бета

    Бета Активный участник

    26.135
    3.002
    хочу_вот_сказать, сдаецца мне, ты там обнаружишь чужие вентканалы. И будешь следующим, который оставит все как есть.
     
  10. andrusha

    andrusha Активный участник

    27.469
    5.234
    Надо. Очень удобно
     
  11. missouri

    missouri Активный участник

    8.582
    215
    хочу_вот_сказать, . дом - ЖБи (ошибится не должна, год в такой прожила. поставить угловую ванну там можно только объединив туалет с ванной и кухню с залом - вместо коридорчика - расширение туалета с ванной. Но, мне кажется, в данной планировке это не совсем удобно. вернее совсем не удобно.

    ---------- Сообщение добавлено 18.01.2011 13:51 ----------

    вентканалы - упаси боже разбивать - начнем с того, что у вас вентиляции не будет...а то и соседи снизу могут жалобу подать - у них то тоже вентиляции не будет, а будет грибок, и астма
     
  12. BigFoot

    BigFoot Активный участник

    1.528
    1
    У меня дома стоит ванна 146 на 146 - она просто огромная. Вдвоем можно лежать без проблем. Не понимаю зачем нужна 180 на 180? По 8 человек мыться что ли?
     
  13. ОЧумелец

    ОЧумелец Активный участник

    4.437
    49
    И я не понимаю.
    Все должно соответствовать размерам комнаты.
     
  14. хочу_вот_сказать

    хочу_вот_сказать Активный участник

    8.374
    18
    BigFoot, как в 146 можно вообще влезть не понимаю, тем более вдвоем? 170 ещё более менее, и то..
     
  15. ОЧумелец

    ОЧумелец Активный участник

    4.437
    49
    Геометрию в школе учил? Чем гипотенуза от катета отличается знаешь?
    Так вот: 146 - это катет.... :)
     
  16. BigFoot

    BigFoot Активный участник

    1.528
    1
    хочу_вот_сказать, я ж по русски написал - двое легко лежат не мешая друг другу. А уж в 180 можно роту солдат мыть. Это же не 180 на 90, а 180 на 180.
     
  17. хочу_вот_сказать

    хочу_вот_сказать Активный участник

    8.374
    18
    Короче в итоге снесли стену между гостиной и кухней, а так же стены санузла, ванную существенно расширяю и торцевую стену гостиной тоже нафиг сношу. Хотя сперва были мысли не трогать ничего, теперь взад дороги нет )
     
  18. koluchiy

    koluchiy Новичок

    60
    0
    Добрый день. Хочу сделать перепланировку в квартире. Подскажите пожалуйста, какие процедуры надо пройти, где и сколько все это будет стоить? Хотелось бы услышать подробности от людей, кто это делал.

    Еще вопрос по поводу СНиП 31-01-2003 ЗДАНИЯ ЖИЛЫЕ МНОГОКВАРТИРНЫЕ
    9.22 Не допускается размещение уборной и ванной (или душевой) непосредственно над жилыми комнатами и кухнями.

    Если у меня первый этаж, то расширить ванную с туалетом можно за счет коридора?
     
  19. Frog-traveller

    Frog-traveller Активный участник

    2.353
    8
    У меня сегодня было заседание комиссии в администрации. Все сложилось хорошо:) Если интересно, стучи в личку:)

    У меня пятый этаж и так сделано. Можно:)