Перепланировка

Тема в разделе "Ремонт и строительство", создана пользователем Everwesss, 05.12.10.

  1. ОЧумелец

    ОЧумелец Активный участник

    4.437
    49
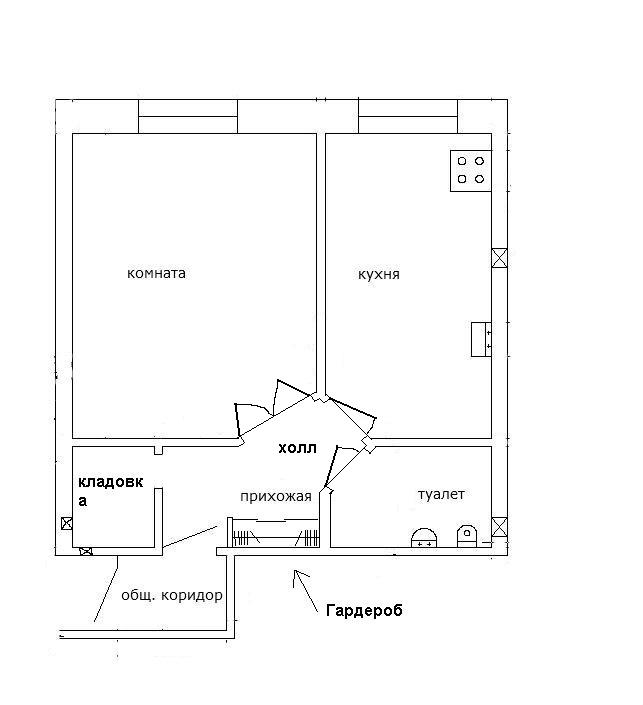
    Именно по этому в первом эскизе я дверь нарисовал.
    Вот еще вариантик для тех кто не хочет объединения. Более затратный, но удаляет входную дверь от комнаты, чтобы входящие-уходящие не мешали спящим :)
    При желании можно добиться симметрии холла (нужно вымерять) и обыграть интересным рисунком кафельного пола ;)
     

    Вложения:

    • before2.JPG
      before2.JPG
      Размер файла:
      31,7 КБ
      Просмотров:
      446
  2. SilverClash

    SilverClash Активный участник

    3.293
    0
    ну это как постараться... но просто не будет, это точно.

    ---------- Сообщение добавлено 06.12.2010 13:14 ----------

    я тоже думал о таком варианте, но тут есть один существенный недостаток - в том районе где расположенны двери будет достаточно тесно... если можно так сказать, будут пробки :d

    Подобное расположение дверей в жилой комнате актуально в панельных домах, где обычно коридор узковат. Собственно в ЖБИшных домах так и сделано.
     
  3. 3.14-2.71

    3.14-2.71 Активный участник

    21.456
    203
    Припоминаю, что в типовых хрушобах есть вариант с однокомнатной квартирой где вход в кухню через зал.

    По максимизации площади, я бы предложил как в посте #54, с раздвижной перегородкой, но добавить дверь в сортир из кухни -- что бы можно было мусор например вынести, или пройти окольными путями если кто то спит в комнате.

    Вариант с косыми стенами фиговый, некрасиво все это.

    и зачем судье за ради чьего то сортира проблемы?
     
  4. SilverClash

    SilverClash Активный участник

    3.293
    0
    вопрос можно поставить ребром - зачем ему гемморой с обжалованием решения, если решение спорное?
     
  5. Бета

    Бета Активный участник

    26.135
    3.002
    Больше всего понравился - и отдельно, и кладовка, и с/у большой.
     
  6. SilverClash

    SilverClash Активный участник

    3.293
    0
    это да, но концентрация дверей в районе надписи ХОЛЛ слишком большая, это не очень удобно.
     
  7. Бета

    Бета Активный участник

    26.135
    3.002
    SilverClash, двери же открываются внутрь комнаты и кухни, к тому же почти всегда открыты.
     
  8. ОЧумелец

    ОЧумелец Активный участник

    4.437
    49
    Совершенно верно :)
    В двухстворчатой двери зала "толкаться" сложно :)
     
  9. ОЧумелец

    ОЧумелец Активный участник

    4.437
    49
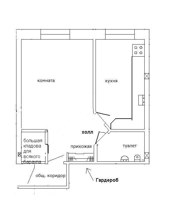
    До кучи :) :
     

    Вложения:

    • before3.JPG
      before3.JPG
      Размер файла:
      32,4 КБ
      Просмотров:
      522
  10. SilverClash

    SilverClash Активный участник

    3.293
    0
    что то в этом есть :)

    жаль только форма комнаты сильно теряется...
     
  11. Бета

    Бета Активный участник

    26.135
    3.002
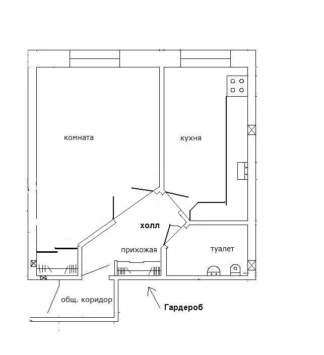
    Ломать так ломать!:p
     

    Вложения:

    • before3.JPG
      before3.JPG
      Размер файла:
      32,7 КБ
      Просмотров:
      533
  12. SilverClash

    SilverClash Активный участник

    3.293
    0
    действительно
     

    Вложения:

    • before3.JPG
      before3.JPG
      Размер файла:
      28,6 КБ
      Просмотров:
      254
  13. SilverClash

    SilverClash Активный участник

    3.293
    0
    только тогда на кухне у окна лучше сделать большой стол, а плиту перенести поближе к туалету.
     
  14. Everwesss

    Everwesss Активный участник

    8.275
    302
    аххахах .. ппц :haha:

    Понравился вариант, где сортир расширяется вплоть до входной двери - при учёте того, что существующий сортир шириной полтора метра и того, что коридор трехметровый, имеем суперсортир в 4,5 метра длинной!! Или поставить туда комп? :haha:
     
  15. SilverClash

    SilverClash Активный участник

    3.293
    0
    аффтор, а где благодарности? :d

    ---------- Сообщение добавлено 07.12.2010 11:46 ----------

    и раскладушку!
     
  16. Everwesss

    Everwesss Активный участник

    8.275
    302
    SilverClash, ды я пока решил оставить всё как есть)
     
  17. SilverClash

    SilverClash Активный участник

    3.293
    0
    собственно что и требовалось доказать. ИМХО из этого варианта ничего лучше сделать не получится... хотя это дело вкуса конечно.
     
  18. Everwesss

    Everwesss Активный участник

    8.275
    302
    SilverClash, да нет, кабинку впихнуть напротив горшка, делов-то, а душевую переделать в сушильно-постирочную.

    Ну, и поставить комп там :haha:
     
  19. Бета

    Бета Активный участник

    26.135
    3.002
    где ум? где логика? сами с женой придумали увеличить сортир за счет кухни, а теперь ухахатывается....:frustrate
     
  20. SilverClash

    SilverClash Активный участник

    3.293
    0
    ИМХО не стоит. Про очереди в совмещенный санузел тут уже писали...
     
  21. Everwesss

    Everwesss Активный участник

    8.275
    302
    Бета, ну не на полтора метра же увеличивать! На 40-50 см.
     
  22. Бета

    Бета Активный участник

    26.135
    3.002
    полтора плюс полтора будет три, а не 4,5.
    Самый большой сортир предложил вам Климет Ефремович, да и тот примерно 3,8 метра длиной, а никак не 4,5.
    Я только что в двухместном люксе проживала (в Мск), так специально померяла с/у. Как раз 3 х 1,5 = 4,5 кв.м. Прэлесть!!! Чувствуешь себя человеком. А брат мой построил в доме такой сортир, что один гость (на этапе строительства) сказал "какой ***** сделал такую маленькую комнату?" "Это санузел, вообще-то"... Немая сцена. Там метров 8 и окно.
     
  23. ОЧумелец

    ОЧумелец Активный участник

    4.437
    49
    только не в том случае, когда из-за этого полностью ликвидирована прихожая. Даже обувь поставить негде, тем более одежду повесить.
    Все планировки-перепланировки надо вычерчивать с расстановкой мебели и реально смотреть, что где умещается. А не так, что построил, а потом комп вынужден в роскошном сартире стоять ;)
    Поэтому и вариант с удалением стены комната-прихожая не подходит:
    -Всяк входящий в квартиру будет обозревать с порога всех спящих и бегающих в трусах....(даже укрыться негде) :)
    -Удаляется стена в комнате, у которой может стоять телевизор, кровать и тд...

    В однокомнатной квартире все надо высчитывать "до сантиметра". Обидно будет, если из-за непродуманной планировки, на кухне не влезет холодильник в нишу или посудомойка, стиралка....

    Используйте комп. программы, где есть библиотеки с набором мебели и 3D просмотр. Пусть даже программа будет любительская.
     
  24. Бета

    Бета Активный участник

    26.135
    3.002
    для этого достаточно листка и ручки. Нафига этот абстрактный набор мебели. На практике этой мебели может не быть.

    А всегда говорю - любую перепланировку надо начинать с подбора конкретной мебели в магазине. Особенно для нано-квартир. Только в этом случае не будет мучительно больно.

    ---------- Сообщение добавлено 07.12.2010 17:40 ----------

    Точно также и с объединенным санузлами - удаляется возможность что-то поставить. Хоть кто-то это понимает.;)
     
  25. ОЧумелец

    ОЧумелец Активный участник

    4.437
    49
    Мебель абстрактная, но размеры СТАНДАРТНЫЕ. Дизайн стула может быть любой, но его размеры практически одинаковые, как и размеры кухонной мебели, унитазов, ванн и пр.
     
  26. Бета

    Бета Активный участник

    26.135
    3.002
    ОЧумелец, Не верю! (с)
    Все зависит от личных притязаний. Если пофик что за кухня - это одно. А если создаешь кухню своей мечты - совсем другое. Я уж не говорю о том, что размерам на ценнике нельзя верить, только перемерять. :frustrate Да что ты мне рассказываешь! Я на этом собаку съела вместе с конурой. :d

    ---------- Сообщение добавлено 07.12.2010 18:44 ----------

    щас фотку покажу - самый показательный пример нестандартности.
     
  27. Бета

    Бета Активный участник

    26.135
    3.002
    Вот. Думаешь, сначала надо было короб сделать и бордюр выкладывать, а потом раковину и металлическую полку покупать? ;)
    Хорошо фантазировать когда место есть, а в наших ванных фантазия резко ограничивается выбором в магазинах.
     

    Вложения:

    • ванная.JPG
      ванная.JPG
      Размер файла:
      335,4 КБ
      Просмотров:
      449
  28. ОЧумелец

    ОЧумелец Активный участник

    4.437
    49
    Создавайте себе кухню "своей мечты" :) но учитывайте СТАНДАРТНУЮ ширину столешницы, СТАНДАРТНЫЕ размеры шкафов: 60, 45см и тд..., расчтитанные на СТАНДАРТНУЮ встраиваемую технику. Высота и ширина вашей стиралки тоже СТАНДАТНЫЕ... и тд. и тп.
    Вот я о чем.
    Начните замерять обеденные столы и увидите, при всем разнообразии, стандартные размеры для определенного количества посадочных мест... Есть вариации (и они выбираются в опциях программы). Но нужно от чего-то отталкиваться при проектировании планировки.

    Это для тех, кто имеет опыт :)
    Бета,
    Прости, но я криминала в твоей фотке не увидел :)
     
  29. Бета

    Бета Активный участник

    26.135
    3.002
    Так я и говорю - от реала.

    То есть то, что ширина раковины, полки и короба абсолютно совпадают тебя никак не впечатлило? Ну и ладна... :) Тогда другие фотки выкладывать не буду.

    ---------- Сообщение добавлено 07.12.2010 20:01 ----------

    У меня как раз стандартная духовка и не влезала. Газовая труба мешала. Оказалось, что духовок с небольшой глубиной в природе всего две (!). И только одна подошла по стилю. Еле выцарапала ее в москве.
     
  30. ОЧумелец

    ОЧумелец Активный участник

    4.437
    49
    Я же не слабонервный :)
    Но я оценил;)
    Давай выкладывай :)
    Я бы фотки своей (-их) выложил, но марафет наводить ради фотосессии не охота. Но там подгонка впечатляет даже меня, хотя и сам делал:d